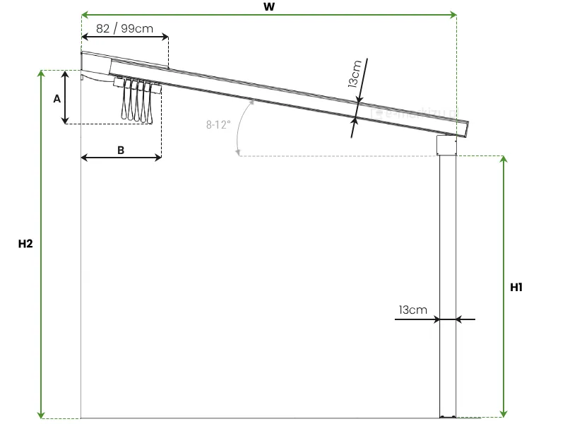
W – wysięg pergoli
H1 – wysokość stopy pergoli, standard 230cm (można wykonać niższą lub wyższą, opcja dodatkowo płatna)
H2 – wysokość montażu do ściany uzależniona od kąta pochyłu oraz wysięgu pergoli
Daszek – 82cm do wysięgu 450cm, 99cm powyżej
A – wysokość zwiniętego pakietu tkaniny
B – wysokość panelu ściennego
C – szerokość zwiniętego pakietu tkaniny
| Wysieg W [cm] | A [cm] | C [cm] | Liczba belek |
|---|---|---|---|
| 250 | 34 | 60 | 5 |
| 300 | 35 | 65 | 6 |
| 350 | 39 | 65 | 6 |
| 400 | 39 | 70 | 7 |
| 450 | 40 | 76 | 8 |
| 500 | 40 | 81 | 9 |
| 550 | 41 | 86 | 10 |
| 600 | 42 | 91 | 11 |
| 650 | 44 | 91 | 11 |
| 700 | 45 | 96 | 12 |























































